[Built] Competition - First Prize
Location: Kaohsiung, Taiwan
Project Team: Ya-Yun Wang, Pin-Ming Huang (SD), Ya-Yun Wang, Pin-Ming Huang, Way-Lon Lo, Fen-Lan Chen, Jeng-Yu Kao, Jen-Ho Yang, Hsiu-Wen Ou (DD/CD), Kuan-Hsien Li, Fu-Jin You (CA)
Total Floor Area: 7902 m2
Project year: 2014-2017
Photographer: Shawn Liu Studio
Location: Kaohsiung, Taiwan
Project Team: Ya-Yun Wang, Pin-Ming Huang (SD), Ya-Yun Wang, Pin-Ming Huang, Way-Lon Lo, Fen-Lan Chen, Jeng-Yu Kao, Jen-Ho Yang, Hsiu-Wen Ou (DD/CD), Kuan-Hsien Li, Fu-Jin You (CA)
Total Floor Area: 7902 m2
Project year: 2014-2017
Photographer: Shawn Liu Studio
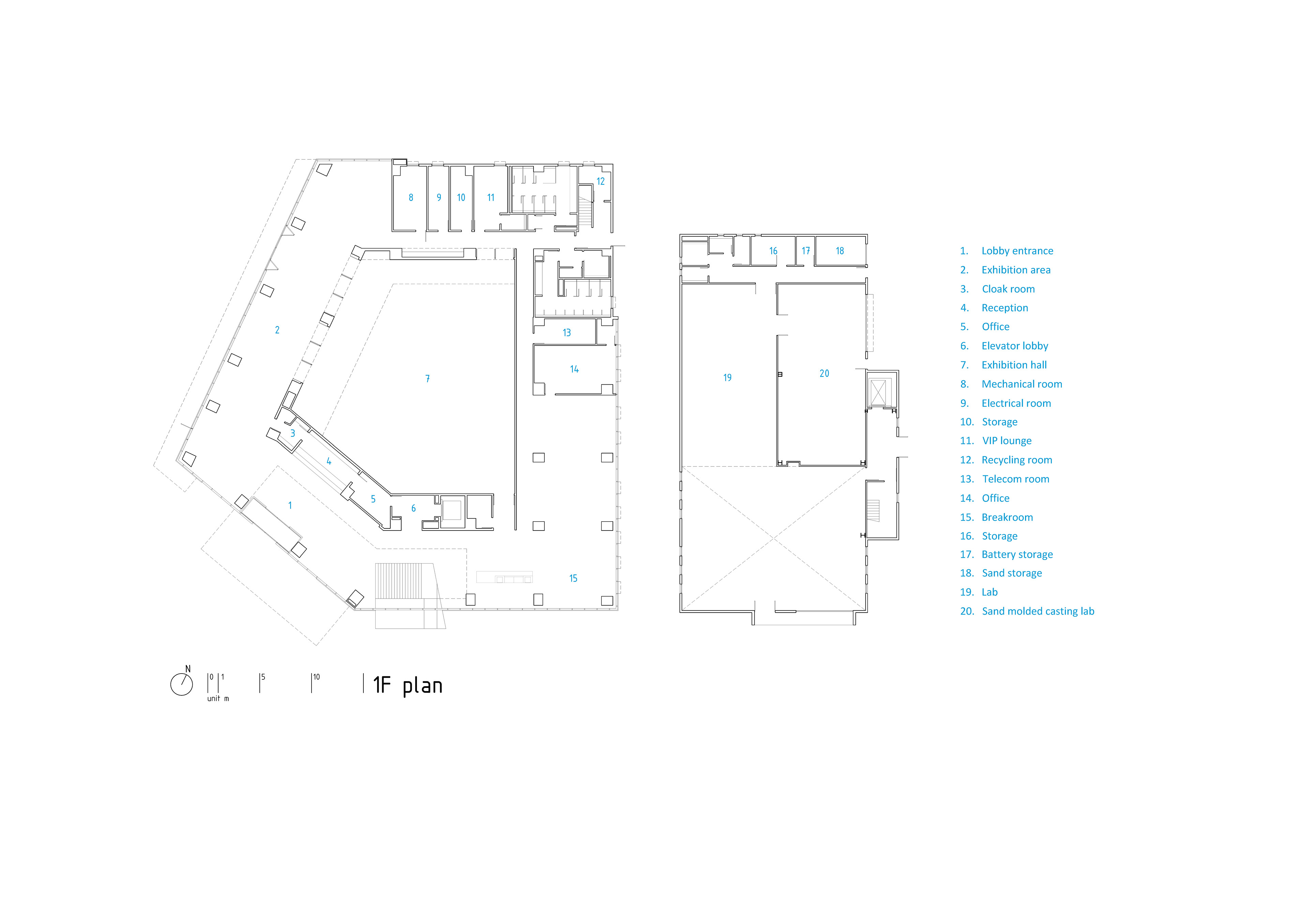
Located in Kaohsiung, the heavy industry center in Taiwan, this project is an incubation center consisting of offices, research rooms, convention hall and exhibition galleries along with three smart manufacturing laboratories.
The site is located at the industrial zone uncontiguous with the city fabric, lacking the density as well as the mechanism to connect people to the city at large. Therefore, we conceive a building with internal density that is paradoxically dominated by interior void which also shapes the circulation throughout the building. By internalizing the urban experience, users can explore various atriums, public stairs, open corridors, gathering spaces and galleries reminiscent of true urban landscape.
The floor plans are concise nest-like parti and the four floors are divided into two stacking components. The research rooms at bottom two floors encircle an enclosed “dark atrium”, which is a multi-purpose convention hall for holding meetings, exhibitions and product launches. Then, the offices at top two floors surround a sky lit “light atrium” centered by a grand staircase, high-tech boardroom and various platforms to encourage physical communication. Perforated wood panels and solid oak flooring in the atriums impart senses such as vision, hearing, smell and touch to compensate for the white, weightless, and digital environment at the surrounding rooms.
The circulation becomes an in-between space between individual research rooms and the collectively used atriums. The lobby is in fact a series of processional spaces embedded with grand staircase, passages, and winding vertical circulation, which guide the movement from entrance to the upper atrium through varying spaces.
From outside, the compact form of pentagon projects five continuous facades facing different urban conditions; the frontality provides visual anchor and reference to this fragmented urban situation. The facades are double-layered combining highly transparent glass surface and gloss white lamella. This articulation gives the architecture a neutral appearance and simultaneously substantial and light.
















