[Built] Competition - First Prize
Location: Tainan, Taiwan
Project Team: Sheng-Yang Huang, Elisabeth Lebas (Competition), Yu-Ling Liu, Ting-Yi Lo, Miao-Ling Cheng (SD/DD/CD), Yong-Sian Fang (CA)
Total Floor Area: 1240 m2
Project year: 2012-2015
Photographer: Shawn Liu Studio
Location: Tainan, Taiwan
Project Team: Sheng-Yang Huang, Elisabeth Lebas (Competition), Yu-Ling Liu, Ting-Yi Lo, Miao-Ling Cheng (SD/DD/CD), Yong-Sian Fang (CA)
Total Floor Area: 1240 m2
Project year: 2012-2015
Photographer: Shawn Liu Studio
I saw the Holy City, the new Jerusalem, coming down out of heaven from God…
The city was laid out like a square, as long as it was wide…
The city does not need the sun or the moon to shine on it,
for the glory of God gives it light, and the Lamb is its lamp.
The glory and honor of the nations will be brought into it.
[Revelation 21:2、16、23 & 26]
The city was laid out like a square, as long as it was wide…
The city does not need the sun or the moon to shine on it,
for the glory of God gives it light, and the Lamb is its lamp.
The glory and honor of the nations will be brought into it.
[Revelation 21:2、16、23 & 26]
This project originates from a vision that the pastor has received from God: Tainan Tung-Men Holiness Church (TMHC) symbolizes an eagle as a biblical metaphor, and it is like an airport, serving as a boarding gate for non-believers to enter into God’s kingdom.
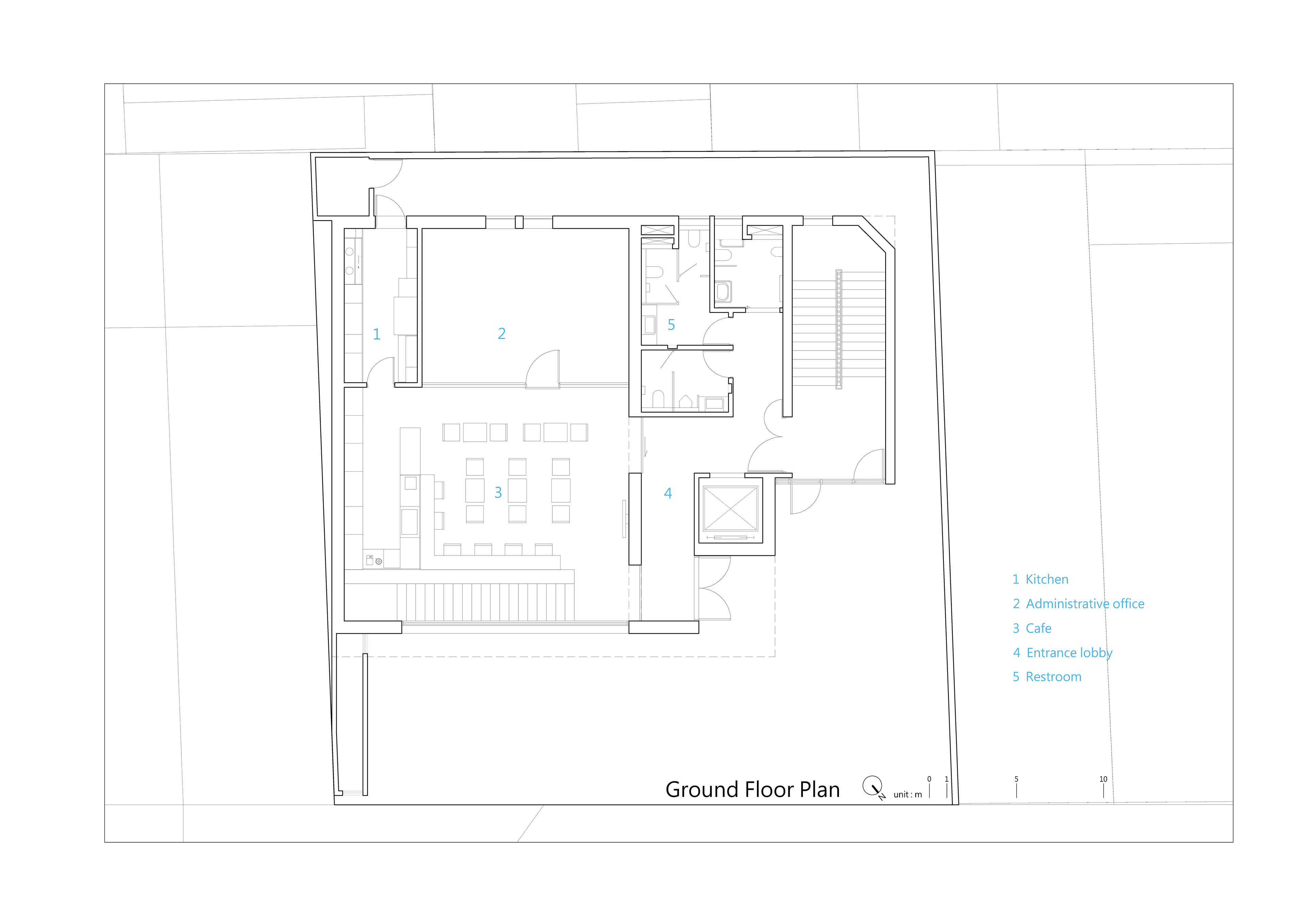
The site of the new church is surrounded by secular residential buildings. Responding to this contextual city fabric as well as the pastor’s vision, the lower floors of the church are used as socializing spaces such as coffee shop and family-friendly book store, inviting the community in and knitting the church closely with the life of the neighborhood. On the other hand, the dematerializing, white staircase leading to the sanctuary above transforms the spatial characteristic from the mundane to sanctified space by guiding the act of rising and turning through spilled natural light.
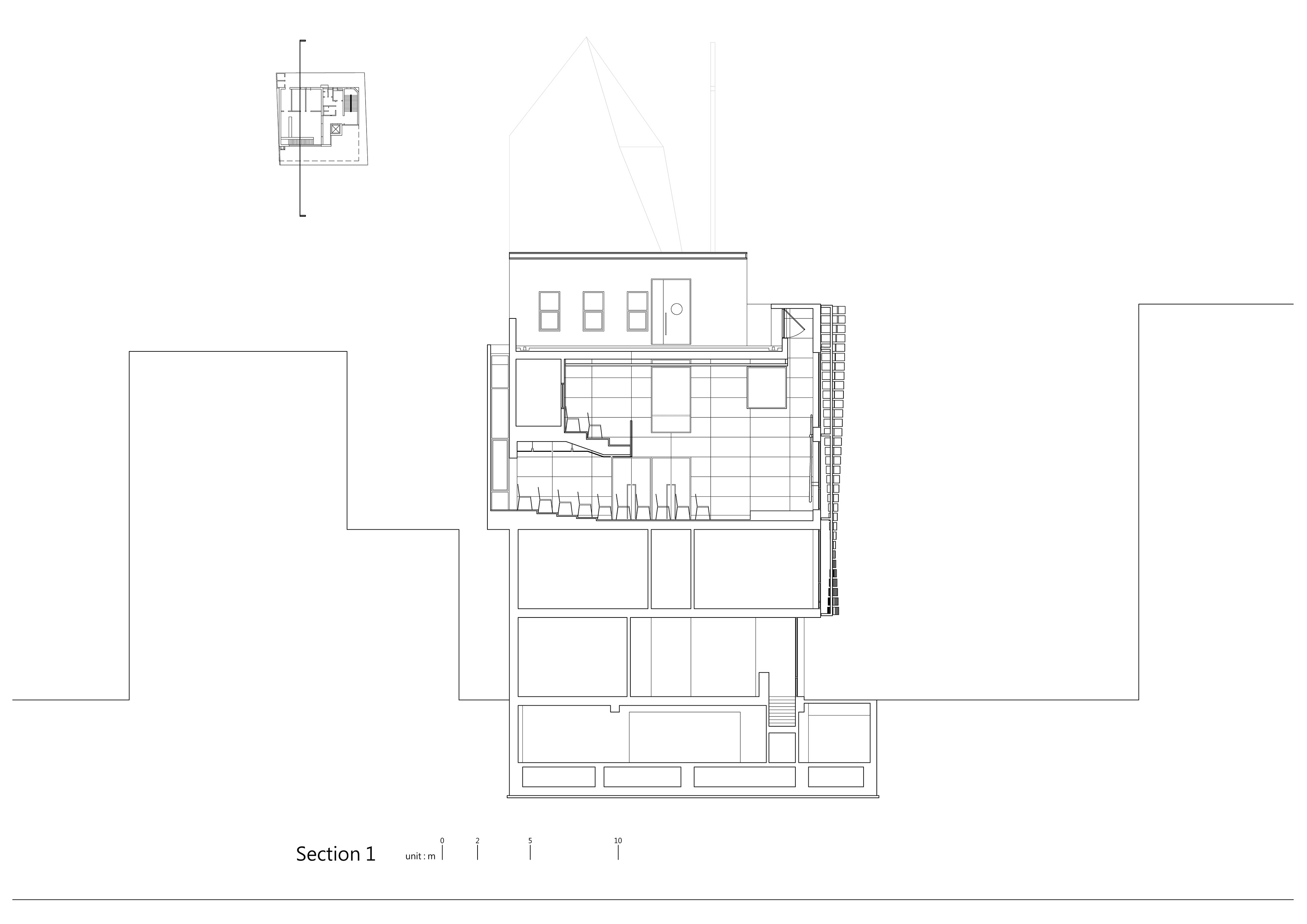
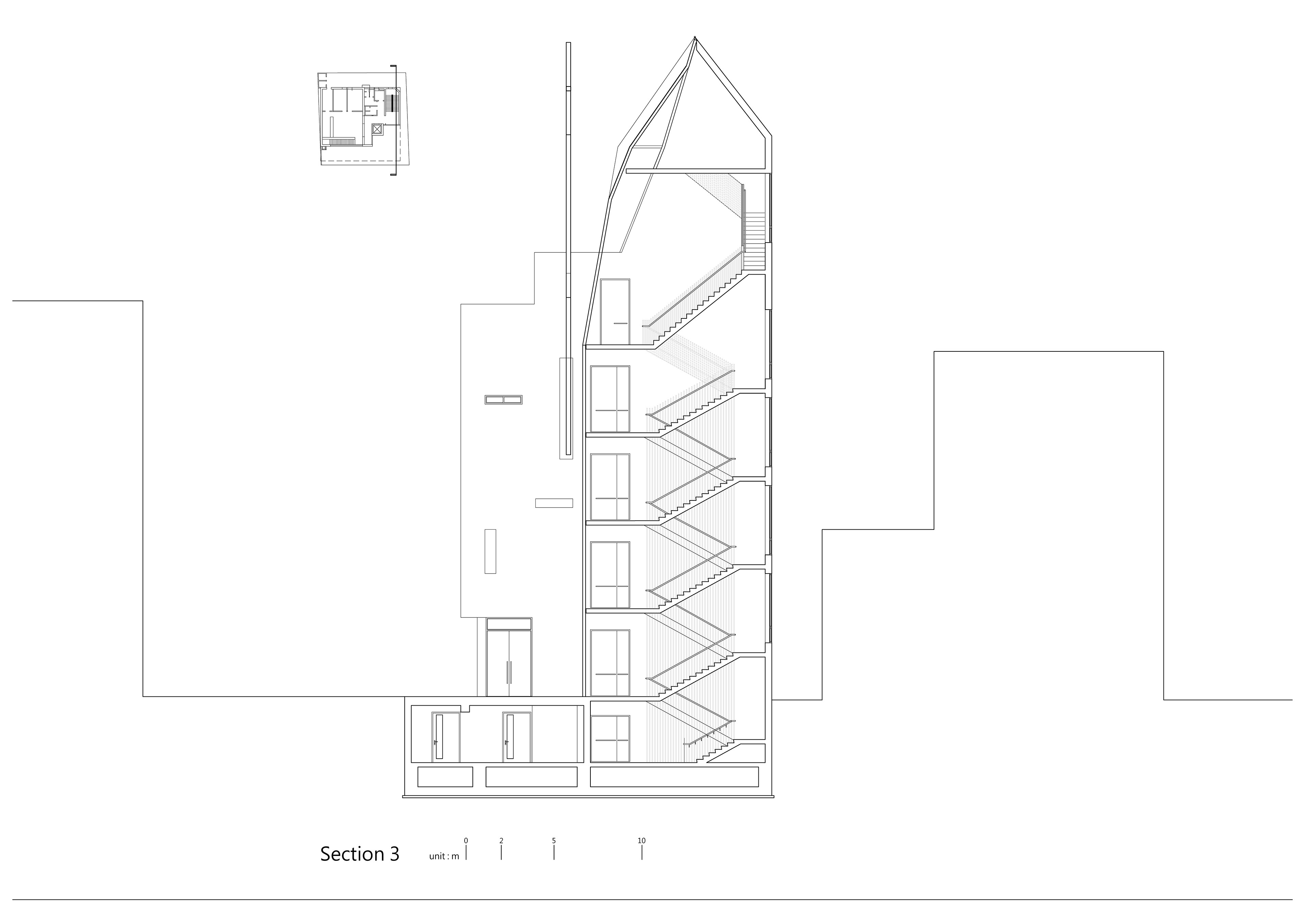
Where the sanctuary signifies as the holy space to worship God, it is a raised two-story cubical volume formed by cast-in-place architectural concrete and illuminated by soft and sacred light filtered through the aluminum perforated screens on the church exterior. A cantilevered wood staircase at the back of the sanctuary takes the user through the sky figuratively before connecting back into the sanctuary mezzanine. The user has a different visual experience at the open mezzanine and the adjacent nursery looking back into the sanctuary. The white vertical staircase terminates at church’s top floor, which consists three separate pray rooms. The user standing at the top landing of the staircase looks out onto the prominent white cross rising above the spandrel glass in close distance to the glass exterior of the stairway.
The church is mainly composed of cool architectural concrete but balanced with warm wood and copper colors used for curved sanctuary ceiling, oak staircase and feather-like metal screens on the main facade.
The aluminum perforated screens or “feathers” on the church exterior pay homage to the eagle metaphor, connecting this contemporary architecture to the members of the church on the emotional level. The orientation of every feather is calculated by the Fibonacci sequence and it is varied by increments of two degrees from feather to feather. Thus, the main church façade appears to be soft, transparent and flowing. Looking out from inside, the feathers form a sheer fabric that presents the secular world outside in a different light.

























