Competition - First Prize
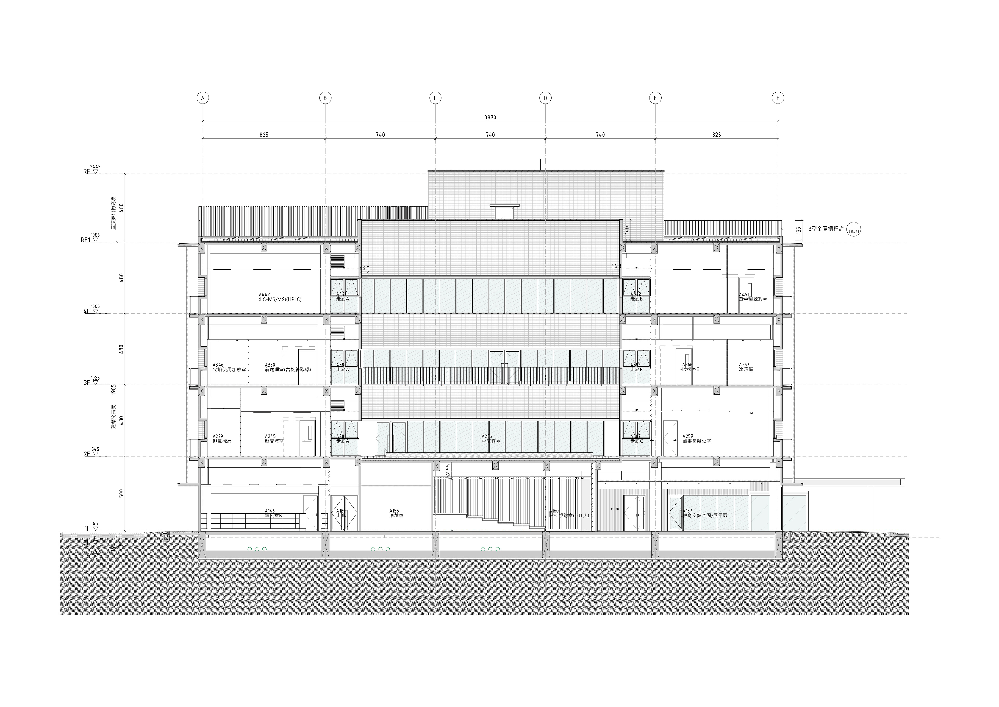
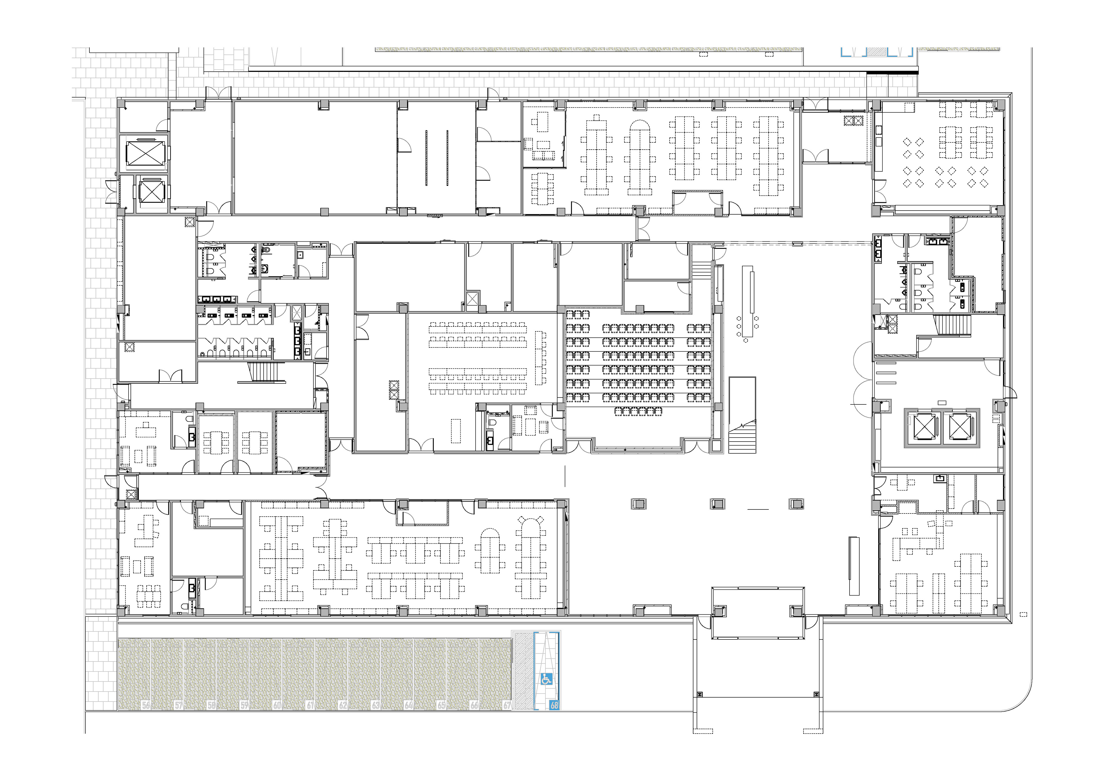
Location: Pingtung, Taiwan
Brief: Laboratories, flexible research offices, multi-functional hall, meeting rooms, and exhibition space
Client: National Animal Industry Foundation
Size: 10777 sqm
Status: Ongoing
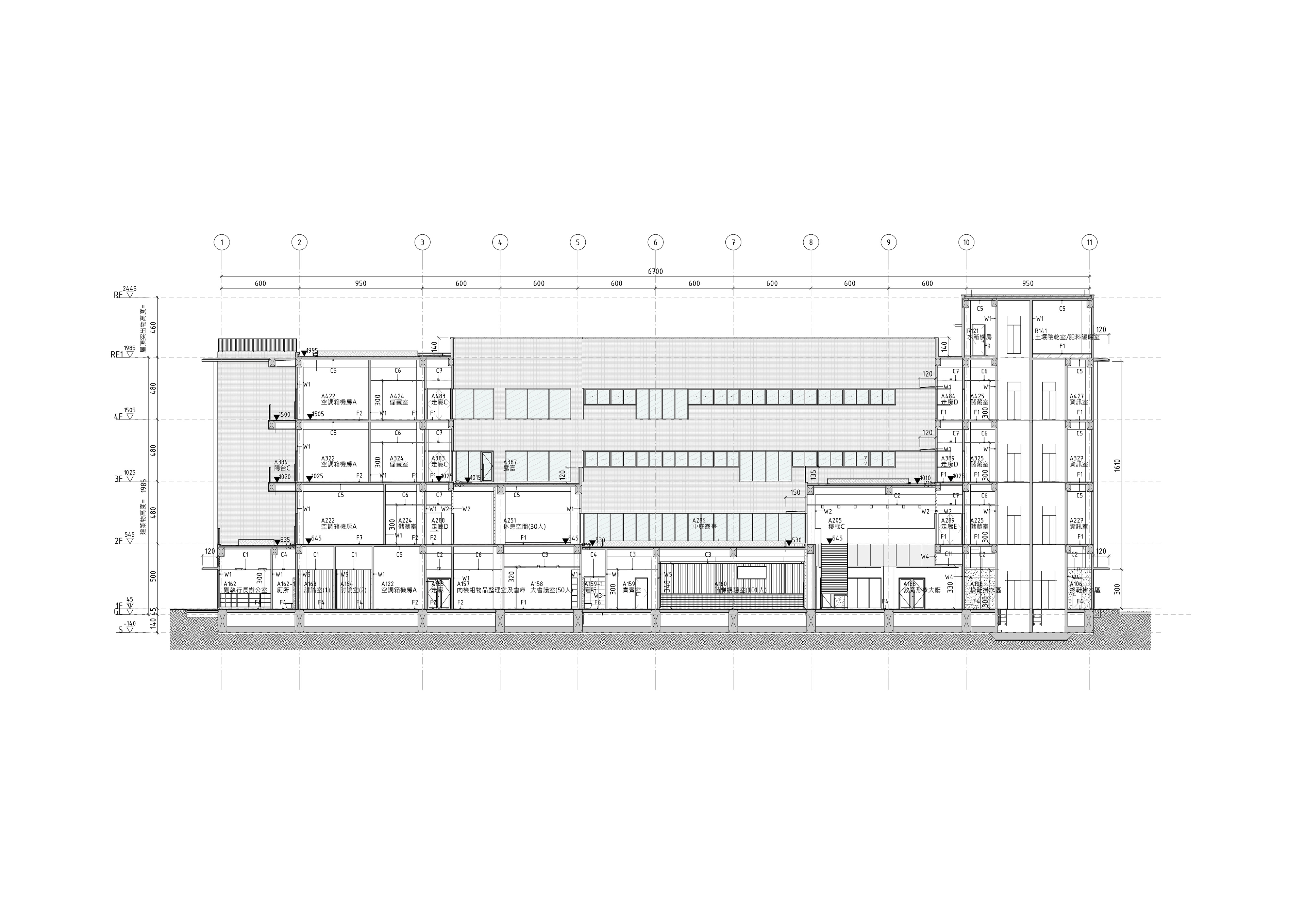
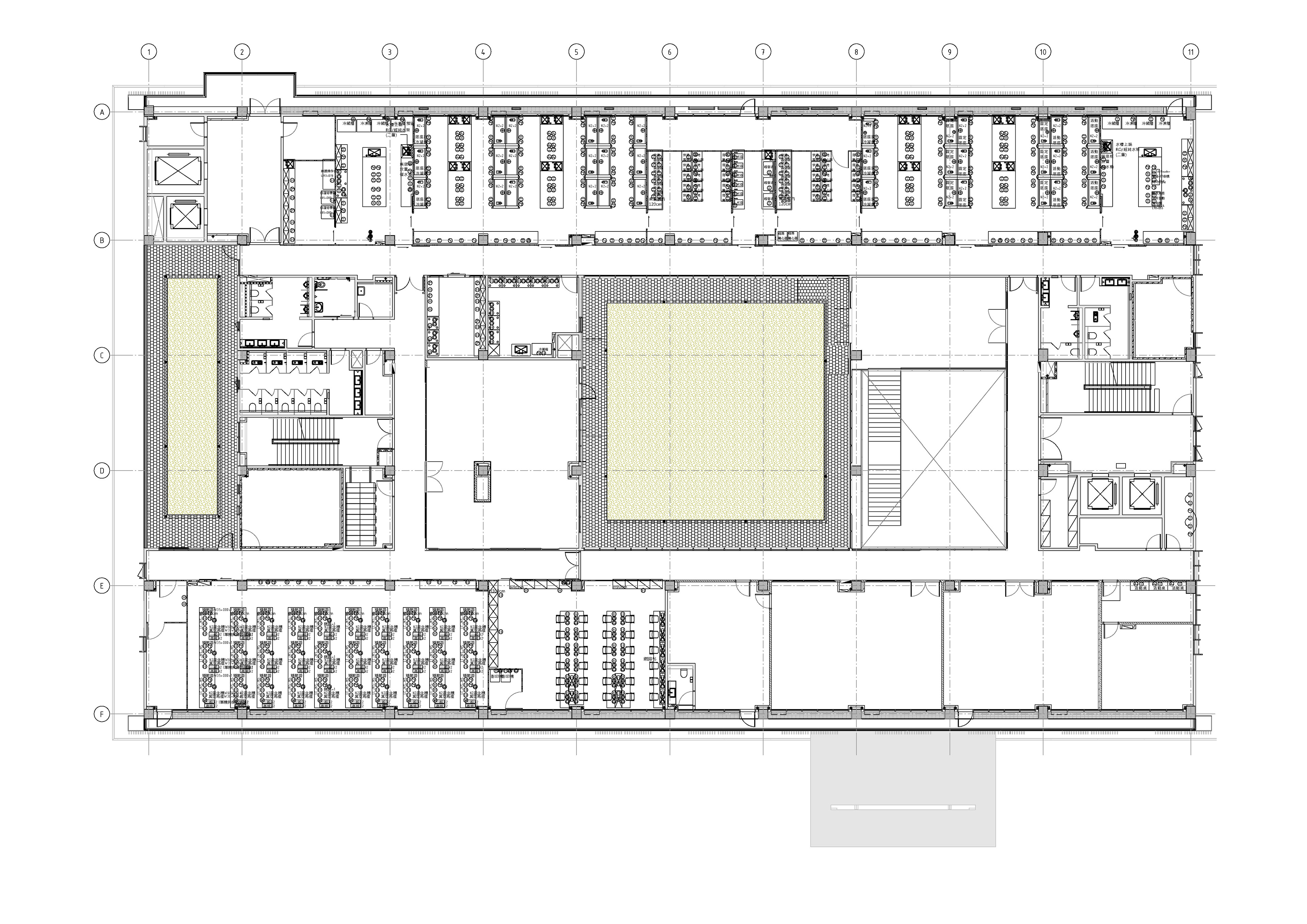
Location: Pingtung, Taiwan
Brief: Laboratories, flexible research offices, multi-functional hall, meeting rooms, and exhibition space
Client: National Animal Industry Foundation
Size: 10777 sqm
Status: Ongoing







