Home
Office
Awards
Planning/Infrastructure
Culture/Public
Research/Production
Education/Wellness
Art/Small
Living
Contact
Home
Office
Awards
Planning/Infrastructure
Culture/Public
Research/Production
Education/Wellness
Art/Small
Living
Contact
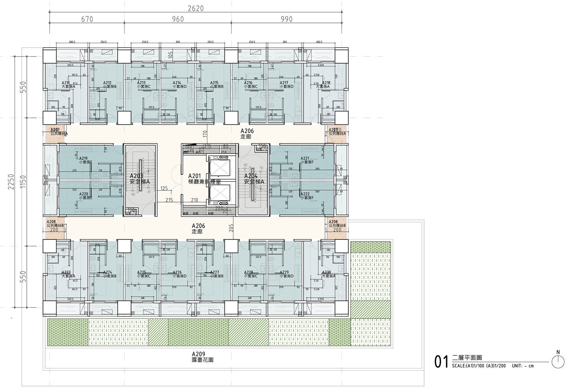
Kaohsiung Xuefu Circular Housing
高雄學府循環住宅
Location: Kaohsiung, Taiwan
Brief: 240 studio units
Client: Taiwan Suger corporation
Size: 10340 sqm
Status: Under construction
↑
Back to Top