[Built] Competition - First Prize
First LEED SCHOOL in Taiwan
Location: Kaohsiung, Taiwan
Project Team: Jia-yu Chen, Yu-ling Liu, Miao-ling Cheng, Shao-yu Deng (SD/DD/CD), Ying-zhang Huang, Waylon Lo, Jia-yu Chen, Jen-ho Yan (CA)
Total Floor Area: 6208 m2
Project year: 2012-2015
Photographer: Shawn Liu Studio
Location: Kaohsiung, Taiwan
Project Team: Jia-yu Chen, Yu-ling Liu, Miao-ling Cheng, Shao-yu Deng (SD/DD/CD), Ying-zhang Huang, Waylon Lo, Jia-yu Chen, Jen-ho Yan (CA)
Total Floor Area: 6208 m2
Project year: 2012-2015
Photographer: Shawn Liu Studio
“The sequential spatial flow” reflects the spatial quality befitting the KAS educational precept by clearly delineating the building circulation that is both flexible and highly navigable. This quality enables the school occupants to access the available resources with ease while the permeable spatial borders encourage cross-pollination of various learning disciplines through integration and visual collaboration. Double quads and cohabitation of architectural volumes are combined to mold such spatial quality into a flow of spaces that are both enclosed and open as well as flexible.
We view building circulation as an extension of continual educational spaces. Scaled up stairs become gathering spaces for classes, corridors with frequent insertion of long oak benches create pocket meeting spaces for pause and exchange, hallways terminate at raised-height spaces produce opportunities for invitation as well as participation of activities down below, and few widened isles with recessed projectors and screens enable future teaching activities with limitless possibilities.
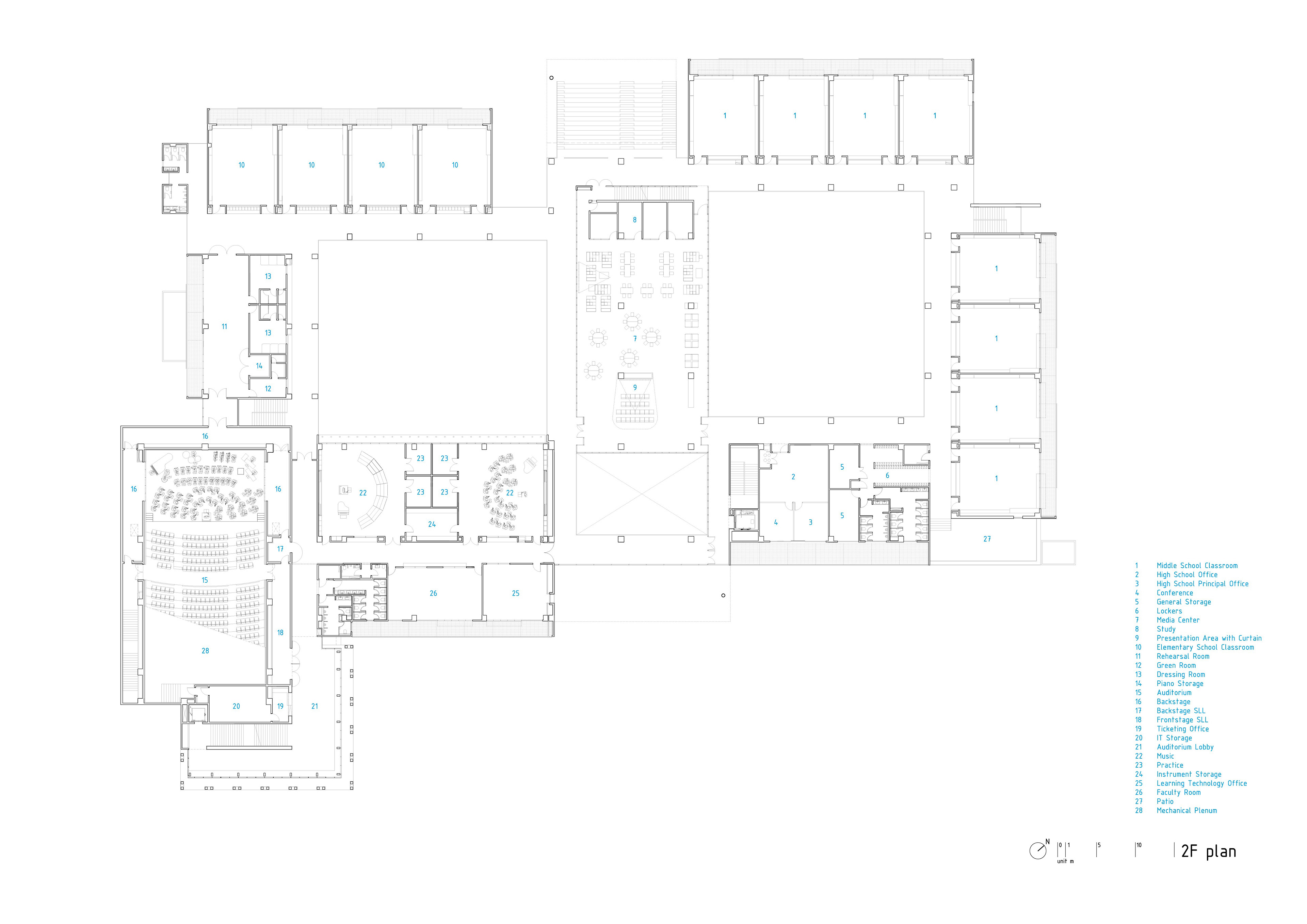
Quadrangle is a spatial typology often used in American higher education since the 19th century. In Taiwanese vernacular architecture, “quad” is where a clan dwells. We unite the two cultural manifestations into one, where the traditional veranda of the Taiwanese vernacular can embody the grandeur of loggia, prevalent in the American university settings. The quad typology not only connects both cultures with inherited social references, but its semi-open corridors also avoid the energy intensiveness and the opaqueness of a totally enclosed building so that teachers as well as students are always in touch with the sun, wind and light of the surrounding natural environment. The elementary school quad oriented toward the west surrounds a grassy yard, anchored by a group of preserved trees while the middle school/high school quad surrounds a large wood platform.
Uniting the two quads is the Learning Hub, a conglomerate of public core spaces including the exhibition hall, media center, the library, and the roof terrace. It is at the center of the school connected by the semi-open corridors, which generate a double-ringed circulation similar to the configuration of the infinity symbol. Thus, the Learning Hub can be accessed from all sides. Students can walk into the 1st floor exhibition hall through the corridors or access the roof terrace from the semi-open space in front of the 3rd floor library. Students coming back from the soccer field can walk up the grand stairway and pass through the media center before heading to classrooms. This arrangement enables the Learning Hub to be the influx of information as well as the influx of movement.
The shoe box shaped auditorium can seat 400 people. When students need to rehearse, a large sliding door can be used to extend the back stage area to include the adjacent music classrooms. This also allows music classrooms to become auxiliary backstage spaces to support larger productions. The sound-absorbing curtains are recessed behind acoustic wood panels on both sides of the auditorium. For theater productions and lectures, these curtains can be closed to absorb sounds in order to provide clarity of the sound broadcasting from the stage. For concerts, these curtains can be opened to increase reverberation time in order to generate good sound quality.
Layered architectural façade engages the urban surrounding. Glass curtain walls and windows are alternated with white stucco exteriors, fine scrims made of aluminum extrusion, staggered and rhythmic stone panels and exterior wood panels to modulate light and the heat from the sun, generating changing shades and shadows that add visual depth and beauty with a hint of playfulness to the urban landscape.
The Kaohsiung American School receives Silver rating from the LEED 2009 for Schools New Construction certification program.




















